PROJEKT: ODTWORZENIE WYSTROJU ELEWACJI KAMIENICY
TYP: REWITALIZACJA
INWESTOR: WSPÓLNOTA MIESZAKNIOWA
LOKALIZACJA: GAŃSK- DOLNE MIASTO
DATA: 2013 r.
ZESPÓŁ PROJEKTOWY: PIOTR KARAŚ, ALICJA KRÓL, KONSERWATOR:WIESŁAWA GLIŃSKA

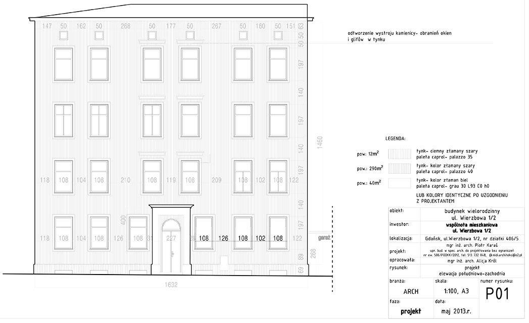
Przedmiotem projektu była termomodernizacja oraz odtworzenie wystroju kamienicy znajdującej się na Dolnym Mieście (w strefie ochrony konserwatorskiej). Przed przystąpieniem do projektu przeprowadziliśmy gruntową analizę historyczną części dzielnicy oraz samego budynku. Najstarsze odnalezione fotografie z 1970 roku nie przedstawiały oryginalnego wystroju elewacji. Na podstawie analiz pierzei i współpracy z Miejskim Konserwatorem Zabytków zaproponowaliśmy proste zdobienia inspirowane pierwotnym wystrojem sąsiedniej kamienicy, wybudowanej w tym samym okresie.

Plik do ściągnięcia : analiza konserwatorska

PROJEKT: ODTWORZENIE WYSTROJU ELEWACJI KAMIENICY
TYP: REWITALIZACJA
INWESTOR: WSPÓLNOTA MIESZAKNIOWA
LOKALIZACJA: GAŃSK- DOLNE MIASTO
DATA: 2013 r.
ZESPÓŁ PROJEKTOWY: PIOTR KARAŚ, ALICJA KRÓL, KONSERWATOR:WIESŁAWA GLIŃSKA

Przedmiotem projektu była termomodernizacja oraz odtworzenie wystroju kamienicy znajdującej się na Dolnym Mieście (w strefie ochrony konserwatorskiej). Przed przystąpieniem do projektu przeprowadziliśmy gruntową analizę historyczną części dzielnicy oraz samego budynku. Najstarsze odnalezione fotografie z 1970 roku nie przedstawiały oryginalnego wystroju elewacji. Na podstawie analiz pierzei i współpracy z Miejskim Konserwatorem Zabytków zaproponowaliśmy proste zdobienia inspirowane pierwotnym wystrojem sąsiedniej kamienicy, wybudowanej w tym samym okresie.

Plik do ściągnięcia : analiza konserwatorska

Nasz strona korzysta z Cookies, dostęp i/lub przechowywanie ich możesz ustawić w przeglądarce. Politykę Prywatności