|
PROJEKT: |
FOLKOWY DOM PASYWNY |
|
TYP: |
DOM JEDNORODZINNY |
|
INWESTOR: |
PRYWATNY |
|
LOKALIZACJA: |
ORPELÓW POD ŁODZIĄ |
|
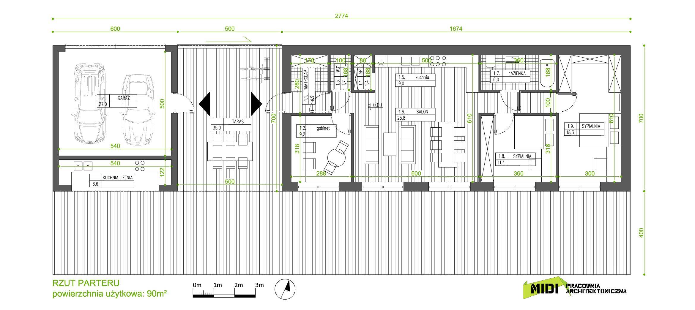
POWIERZCHNIA: |
90m2 |
|
ENERGIA DO OGRZEWANIA: |
20 kWh/m2 na rok |
|
DATA: |
2013 r. |
|
ZESPÓŁ PROJEKTOWY: |
ALICJA KRÓL, PIOTR KARAŚ, OLGA KRÓLAK |
Co prawda, jest to najmniejszy z domów według projektu MIDI (90 m2 powierzchni użytkowej), ale jesteśmy z niego szczególnie dumni. Przy jego projekcie zrealizowaliśmy najważniejsze cele pracowni.
- posiada bardzo prosty i funkcjonalny układ pomieszczeń
- jest tani w budowie (posiada prosty układ konstrukcyjny) oraz tani w użytkowaniu (ma bardzo niskie zapotrzebowanie na energię- energia potrzebna do ogrzania tego domu to zaledwie 20kWh/m2 na rok)
- Przy jego budowie został ograniczony ślad węglowy (suma emisji gazów cieplarnianych wywołanych bezpośrednio i pośrednio przez budowę domu) dzięki wykorzystaniu miejscowych materiałów i doborze odpowiedniej technologii budowy domu
- Część materiałów (między innymi okładzina elewacji) pochodzi z upcyklingu - najbardziej przyjaznego dla środowiska typu recyklingu
- liczba powierzchni biologicznie-czynnej (powierzchni, na której może rozwijać się roślinność) jest nieomal równa tej, którą zastaliśmy na działce przed budową domu
- Układ desek na krótszych elewacjach jest interpretacją tradycyjnego sposobu zdobienia szczytów domów w rejonie łowickim. Elementy folkloru łowickiego zostały wykorzystane również na elewacji południowej.










|
PROJEKT: |
FOLKOWY DOM PASYWNY |
|
TYP: |
DOM JEDNORODZINNY |
|
INWESTOR: |
PRYWATNY |
|
LOKALIZACJA: |
ORPELÓW POD ŁODZIĄ |
|
POWIERZCHNIA: |
90m2 |
|
ENERGIA DO OGRZEWANIA: |
20 kWh/m2 na rok |
|
DATA: |
2013 r. |
|
ZESPÓŁ PROJEKTOWY: |
ALICJA KRÓL, PIOTR KARAŚ, OLGA KRÓLAK |
Co prawda, jest to najmniejszy z domów według projektu MIDI (90 m2 powierzchni użytkowej), ale jesteśmy z niego szczególnie dumni. Przy jego projekcie zrealizowaliśmy najważniejsze cele pracowni.
- posiada bardzo prosty i funkcjonalny układ pomieszczeń
- jest tani w budowie (posiada prosty układ konstrukcyjny) oraz tani w użytkowaniu (ma bardzo niskie zapotrzebowanie na energię- energia potrzebna do ogrzania tego domu to zaledwie 20kWh/m2 na rok)
- Przy jego budowie został ograniczony ślad węglowy (suma emisji gazów cieplarnianych wywołanych bezpośrednio i pośrednio przez budowę domu) dzięki wykorzystaniu miejscowych materiałów i doborze odpowiedniej technologii budowy domu
- Część materiałów (między innymi okładzina elewacji) pochodzi z upcyklingu - najbardziej przyjaznego dla środowiska typu recyklingu
- liczba powierzchni biologicznie-czynnej (powierzchni, na której może rozwijać się roślinność) jest nieomal równa tej, którą zastaliśmy na działce przed budową domu
- Układ desek na krótszych elewacjach jest interpretacją tradycyjnego sposobu zdobienia szczytów domów w rejonie łowickim. Elementy folkloru łowickiego zostały wykorzystane również na elewacji południowej.









