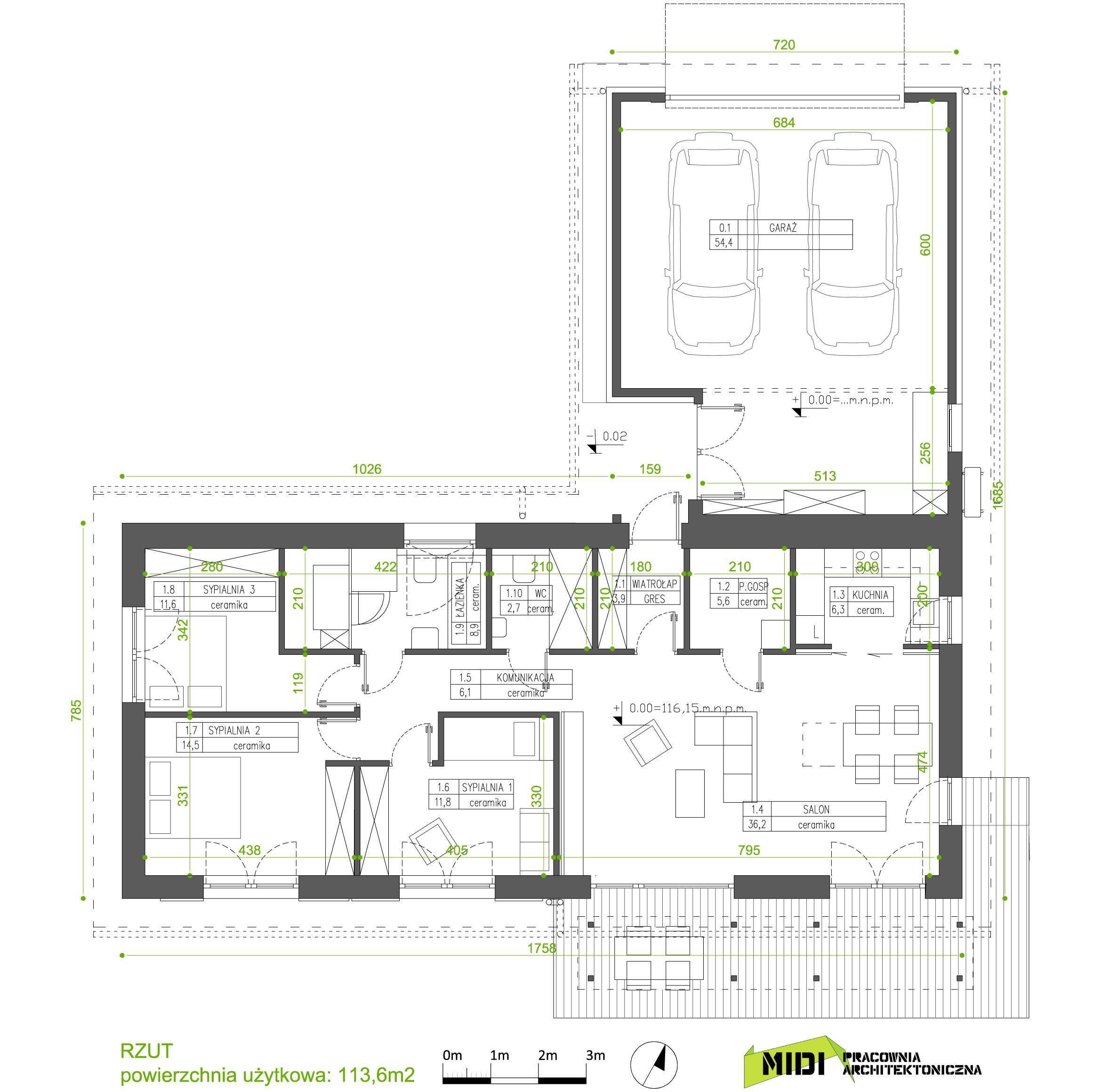
| PROJEKT: | TRADYCYJNY WIEJSKI DOM PASYWNY |
| TYP: | DOM JEDNORODZINNY |
| INWESTOR: | PRYWATNY |
| LOKALIZACJA: | KLESZCZEWO |
| POWIERZCHNIA: | 110 m2 |
| ENERGIA DO OGRZEWANIA: | 15 kWh/m2 na rok |
| DATA: | 2013 r. |
| ZESPÓŁ PROJEKTOWY: | ALICJA KRÓL, PIOTR KARAŚ, OLGA KRÓLAK |
Ten dom to dowód na to, że można połączyć nowoczesne energooszczędne rozwiązania, jakie w sobie kryje, z tradycyjnym wyglądem. Życzeniem inwestora było, aby był to niewielki domek, nie różniący się od typowej wiejskiej zabudowy Kleszczewa. Można się domyśleć , że jest to dom pasywny (jego zapotrzebowanie na ciepło to 10% zapotrzebowania typowego domu) jedynie po braku komina. No chyba że mamy wgląd w rachunki...
Dom pozytywnie przeszedł weryfikację w programie Narodowego Funduszu Ochrony Środwiska NF15 i otrzymał dotację dla domu pasywnego wysokości 50000 zł.
Dom przeszedł także test szczelności który wykazał szczelność budynku na poziomie n=0,6.






Zdjęcia z budowy domu passywnego zgodnego ze standardem NF15 : maj 2015



mocowanie okiennic:

Zdjęcia z budowy: 15 08 2014

Makieta wykonana w technice cięcia laserem.








































